Produktu KATALOGS
| !! VIDES LABIEKĀRTOŠANAI | | APDARES MATERIĀLI | | APGAISMOJUMS | | BLOKI, BRUĢIS | | APKUREI | | BŪVĶĪMIJA, KRĀSAS | | DURVIS | | DROŠĪBAI | | GRĪDAI | | FASĀDEI, SILTUMIZOLĀCIJAI | | INSTRUMENTI | | JUMTU LOGI, PALODZES,.. | | JUMTU MATERIĀLI | | KOKMATERIĀLI, PLĀTNES | | LEŅĶI, STIPRINĀJUMI | | MĒRINSTRUMENTI | | PLĒVES, TENTI | | REĢIPSIS, PROFILI | | SANTEHNIKA | | SAIMNIECĪBAI | | SAUSIE MAISĪJUMI, ŠPAKTELES | | SKRŪVES, DĪBEĻI, NAGLAS | | SPECAPĢĒRBS | | TEHNIKA | | TEHNIKA. DĀRZAM | | TEHNIKA. UZKOPŠANAS | | VENTILĀCIJA | | ŽOGI UN VĀRTI | Dzeloņstieple | LAUKSAIMNIECIBAS ŽOGI | METĀLA žogi | Mobilie žogi | PVC žogi | STABI, MIETI | VĀRTI | | • Vārti Bīdāmie | | • Vārti Veramie | | • Furnitūra | VĀRTU AUTOMĀTIKA | Žogu VAIROGI |
|
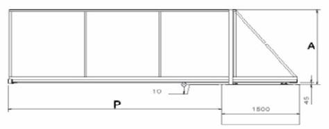
Krāsoti pēc RAL (Standarts RAL ‐ 9005; 6005; 8014; 8017; 7040).
Vārti aprīkoti ar COMBI ARIALDO furnitūru:
Ruļļu bloks - 2gb
Uztveršanas kārba -1gb
Profila gala vāks - 1gb
Augšējais rullītis ar kronšteinu - 1 gb
Automātikas kronšteins Nice piedziņai - 1 gb
Konsole -1 gb
Iespējamais vārtu aizpildījums:
VMS iemetināts panelis
Uzskrūvēts VMS 3D panelis
Iemetināta apaļveida jeb kvadrātveida caurule 20x20 |  ( + ) palielināt
 ( + ) palielināt
 ( + ) palielināt
 ( + ) palielināt
|
Lūdzam ievērot
- Cenas norādītas latos vai eiro ar PVN 21% izņemot:
- kokmateriālus - dēļus, mietiņus un mietiņu pusītes.
- Preču aprakstiem un attēliem ir informatīva nozīme, parametros vai komplektācijās ir iespējamas ražotāju noteiktās izmaiņas.
- Konkrētos jautājumos par precēm varat sazināties ar mums.
|
|
|
Pirkumu grozs
 | Jūsu grozā nav preču |
|
|